
Engine 18
Buffalo, NY
2014
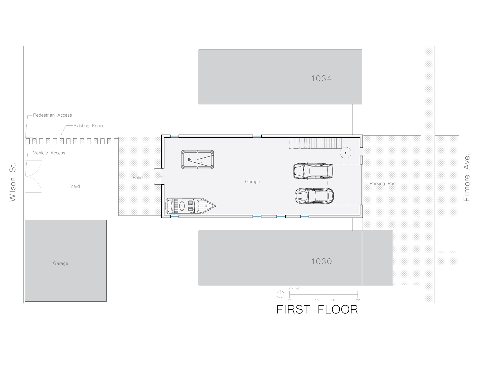
This project proposed a 2 bedroom apartment on the second floor of an old fire department in Buffalo, NY. It creates a large central entertaining zone in the front complete with fire pole. And private section in the rear for bedrooms and bathrooms. A “U” shaped corridor allows freedom of movement throughout the small space. The large first floor garage was kept open for parking, games, motorcycle and boat storage.
